Thursday, November 10, 2011
Proposed elevation to the south.
Stone is proposed to break up the materials and to separate the stone as an entry elevation.
Stone walls and entry constructions are used throughout Lakewood. Windows at the entry elevation will be simple double hung windows similar to many historical buildings in Lakewood.
The fence proposed will be a six foot high wrought steel fence painted black. A Knox box will be located in the gate pier to the east. Owners requested a mail box located at this location, with a slot located in an entry pier.
Call buttons will be located for both drive up and walk up traffic. Sensors are being considered for drive up traffic to announce traffic with a door chime.
Rendered version of the courtyard elevation. Existing brick painted. Black shutters added to main house form. Front door changed to a pair with more glass added. Center dormer proposed to allow for better natural lighting to the spaces on the thrid floor.
Wings will be first floor space only, all with vaulted ceilings.
All new chimneys will match detailing at the existing chimneys.
Drawing shows existing location of property line trees.
Drawing shows concept for the private garden at the master bathroom.
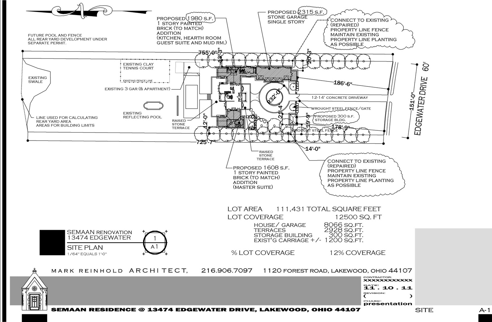
Proposed site plan. The front yard will have two distinct characteristics. The southern area will be open and aid in creating more space at the street area. The car park area will be heavily landscaped and create a more intimate area. The front yard directly in front of the master bathroom will create a private garden viewed from the interior.
Changes to the site will include the attempt to save the existing fence on the east and west sides. This will aid in maintaining the property line trees and helping with privacy.
Changes from the original proposal are highlighted with revision clouds.
Proposed elevation from the rear lot. Stairs will be as wide as possible to allow for the most views from the interiors. Both new wings will have walk out basements (made possible from small retaining walls.) Drawings show the approximate location of a pool, although that construction will be under separate permit.
This is a drawing of the gate and garden buildings. The garden buildings locations and materials differ from the main house so that the structures act as a gate way. Stone walls act as gateways throughout Lakewood. The garden building on the right (east) also blocks the end of the 5 car garage. Inside the gate is a car park and turn about, this area will be heavily landscaped and will designed to act as the first step in the entry sequence.
Subscribe to:
Comments (Atom)












